Bauentwicklung an der Hochschule

Lebensmittellogistik- und Nachhaltigkeitsgebäude

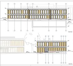
Der zweigeschossige Baukörper folgt dem geschwungenen Verlauf der angrenzenden Falterstraße im Norden mit einer Rückstaffelung, die gleichzeitig im Inneren des Hauses für ideale Raumtiefen der unterschiedlichen Nutzungen ermöglicht. Im Erdgeschoss befinden sich die Seminarräume und die Labore. Das Obergeschoss ist als Dreibund mit Büros nach Norden und Süden konzipiert. Die gestaffelte Kernzone wird von zwei Lufträumen unterbrochen, welche die beiden Etagen räumlich miteinander verknüpfen. Über den Lufträumen sorgen zwei Oberlichter für angenehme Belichtungsverhältnisse. Sämtliche Büroräume, mit Ausnahme des Studentenbüros, sind im 1.OG verortet.
Die kräftige Holz-Glasfassade umhüllt das tragende Skelett, gehalten von den umlaufend sichtbaren Deckenstirnen. Oberflächenbearbeiteter Beton, kräftige Holzelemente und großformatige Glasscheiben sowie geschlossene Holzpaneele bilden die Materialität. Es wird eine im positiven Sinne rustikale Materialität und Haptik erreicht. Robustheit und Handwerklichkeit kennzeichnen den Charakter des Gebäudes. Diese Materialität wird in gleicher Form auch bei den - vom selben Architekturbüro geplanten - Gebäuden Hörsaal und Getränketechnologisches Zentrum zu finden sein.
Sie fügen sich in ihrer Materialhaftigkeit gut in das Ambiente von Ort und der Region ein und trägt zur unverwechselbaren corporate identity des Campus Geisenheim bei.

Die Dachflächen des Gebäudes werden extensiv begrünt und mit einer Photovoltaikanlage ausgetattet. Regenwasser wird in Zisternen aufgefangen und zur Bewässerung der Parkanlagen und landwirtschaftlichen Flächen der Hochschule genutzt.

Gebäudedaten

Flächen

NF 1-6         617,22 m²
NF 7           66,50 m²
TF            249,82 m²
VF           379,75 m²
Summe         1313,29 m²

Inbetriebnahme
Dezember 2023

Architekten

Bez+Kock Architekten

Generalplaner GmbH

Königstraße 84

70173 Stuttgart

Die Landschaftsarchitekten
Bittkau-Bartfelder + Ingenieure GbR
Taunusstrasse 47
65183 Wiesbaden

Impressionen

Pläne und Zeichnungen

Perspektive
Ansichten Nord und Ost
Ansichten Süd und West
Lageplan